Leichte Sprache Gebärdensprache
Wohnungssuche
Weißensee

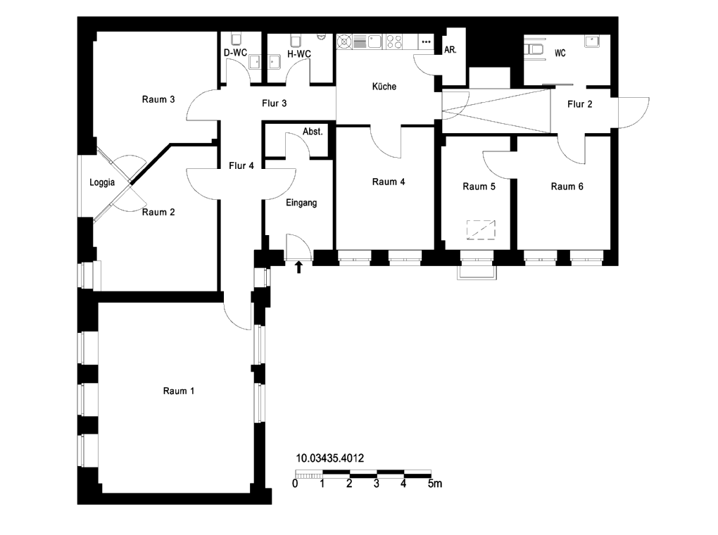
187 m² Fläche verteilt auf sechs Räume für Ihre Geschäftsidee - zentral in Weißensee

Langhansstraße 98 A/B / 13086 Berlin
Wir vermieten provisionesfrei

Miete inkl. NK: 3.605,32 € Fläche 187,25 m²

Diese großzügige Gewerbefläche im Erdgeschoss eines im Jahr 2021 neu errichteten Gebäudes bietet Ihnen auf rund 187 m² die ideale Basis für Ihre Praxis- oder Büronutzung. Sechs helle und gut geschnittene Räume, drei WC-Einheiten sowie ein Balkon schaffen vielseitige Nutzungsmöglichkeiten.
Das Gebäude befindet sich im Hinterhaus eines Altbau-Mehrfamilienhauses und bietet somit viel Ruhe und wenig Verkehrslärm.

Lage
Die Gewerbefläche befindet sich im Berliner Ortsteil Weißensee, welcher zu den gefragten und lebendigen Lagen im Bezirk Pankow gehört. Das Umfeld ist geprägt von einer Mischung aus Wohn- und Geschäftshäusern, kleinen Cafés, Dienstleistern sowie ärztlichen Praxen.
Dank der guten Anbindung an den öffentlichen Nahverkehr (Straßenbahn- und Buslinien in unmittelbarer Nähe) sowie einer schnellen Verbindung in die Berliner Innenstadt ist der Standort sowohl für Kunden als auch für Mitarbeitende optimal erreichbar. Auch Parkmöglichkeiten für das PKW sind im direkten Umfeld kostenlos verfügbar.

Kosten

Kaltmiete 2.996,00 €
Betriebskosten 422,07 €

Heizkosten

187,25 €

Miete inkl. NK

3.605,32 €

Kaution

8.990,00 €

Ausstattung

Objektstandort

Grundriss

Kennzahlen

Fläche 187,25 m²

Etage

0

Fußboden

Kunststoff

Baujahr

1910

Objektnummer

10-03435-00002-4012

Frei ab

sofort

Bedarfsausweis

Baujahr

1910

Erstellungsdatum

2014

Energieeffizienzklasse

C

Endenergiebedarf (in kWh/m²a)

128

Wesentlicher Energieträger

Gas
Jetzt bewerben

Bitte beachten Sie: Der Bewerbungsprozess erfolgt in Kooperation mit unserem Partner Immomio.