Leichte Sprache Gebärdensprache
Wohnungssuche
Weißensee

Großzügige Gewerbefläche in Berlin-Weißensee für Einzelhandel

Berliner Allee 196 / 13088 Berlin
Wir vermieten provisionesfrei

Miete inkl. NK: 4.026,28 € Fläche 284,17 m²

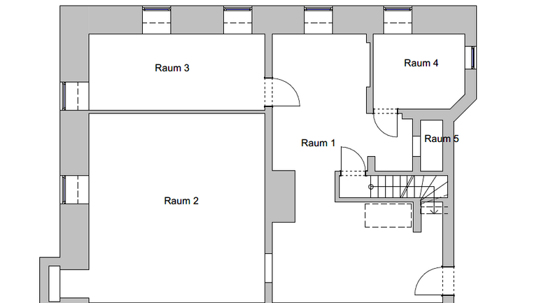
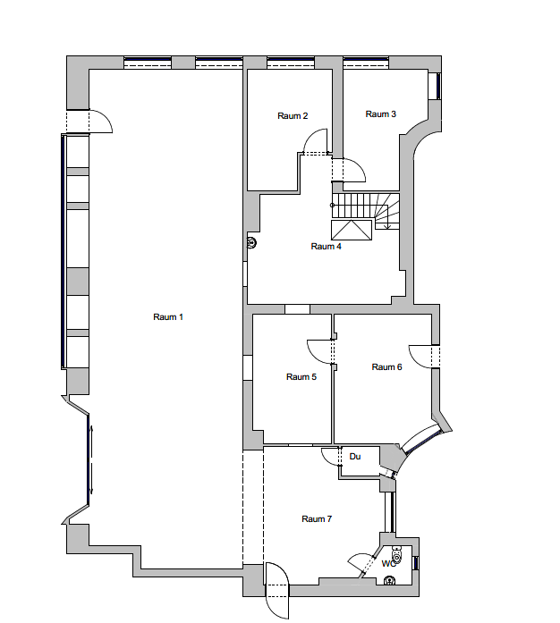
Die vormals als Apotheke genutzte Eckfläche bietet auf rund 230 m² einladende Schaufensterfronten. Im vorderen Bereich befindet sich ein großzügiger Verkaufs- bzw. Beratungsraum, im hinteren Bereich findet man weitere kleinere Räume, die sich optimal als Pausenraum, Küche oder weitere Beratungsräume eignen. Die gesamte Fläche ist unterkellert und bietet somit großzügige Lagermöglichkeiten. Die Kellerfläche umfasst ca. 57m². Die Gesamtnutzungsfläche umfasst demzufolge rund 284 m². Aufgrund der Erdgeschosslage eignet sich die Fläche perfekt als Verkaufsfläche für Einzelhandel.
Der Grundriss kann durch den Mieter individuell gestaltet werden. Anschauen lohnt sich!

Lage
Die Berliner Allee ist eine Hauptverkehrsachse des Ortsteils Weißensee und wird von den Straßenbahnlinien M4, M13, 12 und 27 sowie mehreren Buslinien befahren. Somit ist die Fußgänger- und Kunden-Frequenz unmittelbar sehr hoch.
Die Fahrzeit bis zum Alexanderplatz beträgt ca. 15 Minuten. In der Nähe befindet sich der Antonplatz, welcher als lokales Zentrum fungiert. Dort findet man ein Kino, zahlreiche Einkaufsmöglichkeiten sowie einen Wochenmarkt. Der Weiße See ist nur wenige Meter entfernt und lädt zum Spazieren und zum Entspannen in der Mittagspause ein.

Kosten

Kaltmiete 3.083,91 €
Betriebskosten 426,77 €

Heizkosten

515,60 €

Miete inkl. NK

4.026,28 €

Kaution

12.200,00 €

Ausstattung

Objektstandort

Grundriss

Kennzahlen

Fläche 284,17 m²

Etage

0

Baujahr

1910

Objektnummer

10-03254-00003-4019

Frei ab

sofort

Verbrauchsenergieausweis

Baujahr

1910

Erstellungsdatum

2014

Energieeffizienzklasse

E

Wesentlicher Energieträger

Gas
Jetzt bewerben

Bitte beachten Sie: Der Bewerbungsprozess erfolgt in Kooperation mit unserem Partner Immomio.