Leichte Sprache Gebärdensprache
Wohnungssuche
Karow

Großzügiges Gewerbeobjekt mit zwei Balkonen in Berlin-Karow sucht Nachmieter

Achillesstraße 59 / 13125 Berlin
Wir vermieten provisionesfrei

Miete inkl. NK: 2.416,74 € Fläche 154,28 m²

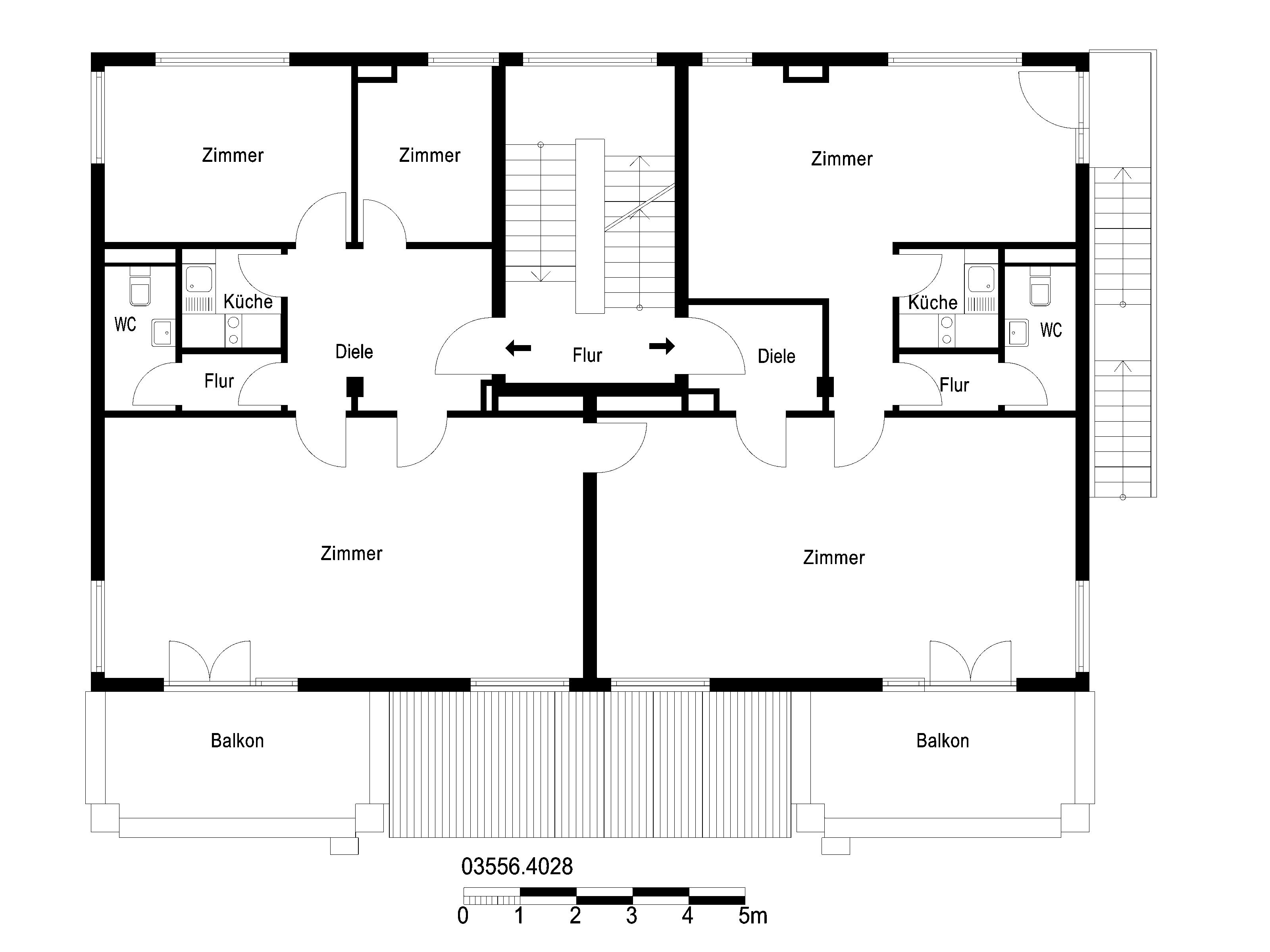
Die großzügige Gewerbefläche mit 154 m² befindet sich im 1.OG eines 4-geschossigen Objektes und lässt sich mit seiner Fläche flexible nutzen. Denkbar wäre die Nutzung als Praxis oder als Gemeinschaftsbüro. Das Gewerbe erstreckt sich über fünf Räume und bietet zusätzlich zwei Küchenbereiche. Außerdem vorhanden sind zwei separate WCs.
Das Highlight der Fläche sind die zwei Balkone, die für Sie eine unglaubliche Möglichkeit der Entspannung bieten.
Überzeugen Sie sich selbst und vereinbaren Sie mit uns einen Besichtigungstermin.

Lage
Neben fußläufigen Einkaufsmöglichkeiten wie REWE oder Netto, lädt unweit das Naturschutzgebiet, die Karower Teiche, ganzjährig zum Spazieren und Entspannen ein. Die S-Bahn-Station Karow ist per Busverbindung in ca. 5 Minuten erreicht oder zu Fuß in etwa 15 Minuten. Durch zahlreiche Kindertagesstätten und Grundschulen in der Umgebung, eignet sich die Lage besonders gut für Familien mit Kindern. Auch die Autofahrer sind durch die naheliegende A10 oder A114 gut in den Verkehr mit eingebunden.

Kosten

Kaltmiete 2.005,64 €
Betriebskosten 256,10 €

Heizkosten

155,00 €

Miete inkl. NK

2.416,74 €

Kaution

7.300,00 €

Ausstattung

Objektstandort

Grundriss

Kennzahlen

Fläche 154,28 m²

Etage

1

Baujahr

1998

Objektnummer

10-03528-00003-4008

Frei ab

sofort

Verbrauchsenergieausweis

Baujahr

1998

Erstellungsdatum

2014

Energieeffizienzklasse

G

Wesentlicher Energieträger

Fernwärme
Jetzt bewerben

Bitte beachten Sie: Der Bewerbungsprozess erfolgt in Kooperation mit unserem Partner Immomio.