Leichte Sprache Gebärdensprache
zurück zur Suche

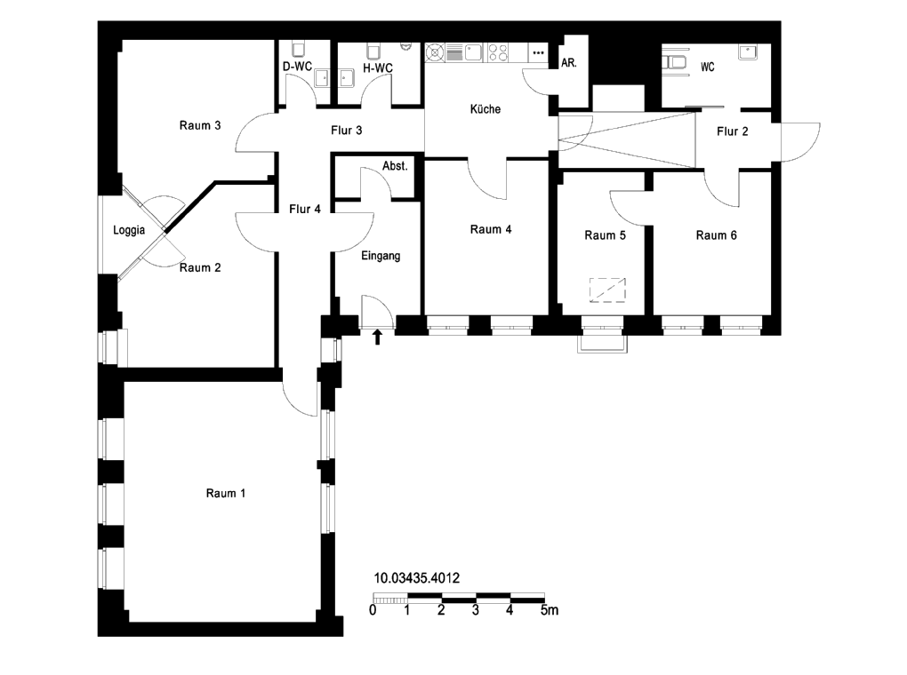
187 m² Fläche verteilt auf sechs Räume für Ihre Geschäftsidee - zentral in Weißensee

Weißensee
Langhansstraße 98 a, b, 13086 Berlin
Wir vermieten provisionesfrei

Details

  • Fläche: 187,25 m²
  • Fußboden: Kunststoff
  • Etage: EG
  • Baujahr: 1910
  • Objektnummer: 10-03435-00002-4012
  • Frei ab sofort

Diese großzügige Gewerbefläche im Erdgeschoss eines im Jahr 2021 neu errichteten Gebäudes bietet Ihnen auf rund 187 m² die ideale Basis für Ihre Praxis- oder Büronutzung. Sechs helle und gut geschnittene Räume, drei WC-Einheiten sowie ein Balkon schaffen vielseitige Nutzungsmöglichkeiten.
Das Gebäude befindet sich im Hinterhaus eines Altbau-Mehrfamilienhauses und bietet somit viel Ruhe und wenig Verkehrslärm.

Lage

Die Gewerbefläche befindet sich im Berliner Ortsteil Weißensee, welcher zu den gefragten und lebendigen Lagen im Bezirk Pankow gehört. Das Umfeld ist geprägt von einer Mischung aus Wohn- und Geschäftshäusern, kleinen Cafés, Dienstleistern sowie ärztlichen Praxen.
Dank der guten Anbindung an den öffentlichen Nahverkehr (Straßenbahn- und Buslinien in unmittelbarer Nähe) sowie einer schnellen Verbindung in die Berliner Innenstadt ist der Standort sowohl für Kunden als auch für Mitarbeitende optimal erreichbar. Auch Parkmöglichkeiten für das PKW sind im direkten Umfeld kostenlos verfügbar.

Kosten

Kaltmiete: 2.996,00 €
Betriebskosten: 422,07 €

Heizkosten:

187,25 €

Miete inkl. NK:

3.605,32 €

Kaution:

10.900,00 €

Bedarfsausweis

Baujahr:

1910

Erstellungsdatum:

2014

Energieeffizienzklasse:

C

Endenergiebedarf (in kWh/m²a):

128

Wesentlicher Energieträger:

Gas
Jetzt bewerben

Ortsteil Weißensee

Gelassen und mit einem Mix aus Alt- und Neubaugebieten, Kleingartenkolonien, Naturschutzgebiet, dem Jüdischen Friedhof und dem namensgebenden Weißen See: In diesem Teil Pankows geht es, trotz relativer Nähe zum Stadtzentrum, größtenteils ruhig zu. Weißensee ist trotzdem urban und, dank der ansässigen Kunsthochschule, beliebt bei Studierenden und Familien.

Mehr Informationen zum Bezirk Pankow

Sie haben Interesse?

Bitte beachten Sie: Der Bewerbungsprozess erfolgt in Kooperation mit unserem Partner Immomio. Über dieses Portal können Sie sich als Mietinteressent*in auf der Suche nach Wohnungen, Gewerbeobjekten oder Stellplätzen registrieren.

Jetzt bei immomio registrieren

  1. Online anmelden oder registrieren

    Klicken Sie im Wohnungsangebot auf “Jetzt bewerben” und loggen Sie sich bei unserem Partner Immomio ein. Falls Sie noch kein Konto haben, können Sie sich schnell und kostenlos registrieren.
     

  2. Einladung zur Besichtigung

    Passt Ihr Profil, laden wir Sie zu einem Besichtigungstermin ein. Bitte bringen Sie dazu einen gültigen Ausweis mit.
     

  3. Unterlagen einreichen

    Wenn Ihnen die Wohnung gefällt, laden Sie Ihre Unterlagen bequem in Ihrem Immomio-Profil hoch. 
    So können wir Ihre Bewerbung prüfen.
     
  4. Rückmeldung erhalten

    Nach der Prüfung melden wir uns mit einer Zusage oder – falls es nicht klappt – mit einer Absage.