Leichte Sprache Gebärdensprache
zurück zur Suche

Freie Gewerbefläche für Einzelhandel in gefragter Lage

Weißensee
Berliner Allee 88, 13088 Berlin
Wir vermieten provisionesfrei

Details

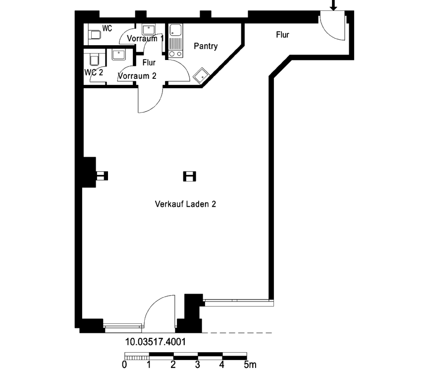
  • Fläche: 91,00 m²
  • Etage: EG
  • Baujahr: 1878
  • Objektnummer: 10-03517-00001-4001
  • Frei ab sofort

Die ca. 91 m² große Ladenfläche im Erdgeschoss überzeugt mit einer breiten, bodentiefen Schaufensterfront zur Berliner Allee. Ein offen geschnittener Verkaufsraum mit einer Deckenhöhe von rund 3,50 m bietet eine attraktive Möglichkeit für die Anbietung von Waren oder Dienstleistungen.
Zusätzlich gibt es einen kleinen Küchenabschnitt sowie zwei separate WCs. Somit kann ggf. auch ein Kunden-WC angeboten werden.
Die Fläche ist ab sofort verfügbar und wird provisionsfrei vermietet.

Lage

Die Berliner Allee ist eine Hauptverkehrsachse des Ortsteils Weißensee und wird von den Straßenbahnlinien M4, M13, 12 und 27 sowie mehreren Buslinien befahren. Somit ist die Fußgänger und Kunden-Frequenz unmittelbar sehr hoch.
Die Fahrzeit bis zum Alexanderplatz beträgt ca. 15 Minuten. In der Nähe befindet sich der Antonplatz, welcher als lokales Zentrum fungiert. Dort findet man ein Kino, zahlreiche Einkaufsmöglichkeiten sowie einen Wochenmarkt. Der Weiße See ist nur wenige Meter entfernt und lädt zum Spazieren und zum Entspannen in der Mittagspause ein.

Kosten

Kaltmiete: 1.990,00 €
Betriebskosten: 170,00 €

Heizkosten:

90,00 €

Miete inkl. NK:

2.250,00 €

Kaution:

6.800,00 €

Bedarfsausweis

Baujahr:

1878

Erstellungsdatum:

2014

Energieeffizienzklasse:

A+

Endenergiebedarf (in kWh/m²a):

279.3

Wesentlicher Energieträger:

Gas
Jetzt bewerben

Ortsteil Weißensee

Gelassen und mit einem Mix aus Alt- und Neubaugebieten, Kleingartenkolonien, Naturschutzgebiet, dem Jüdischen Friedhof und dem namensgebenden Weißen See: In diesem Teil Pankows geht es, trotz relativer Nähe zum Stadtzentrum, größtenteils ruhig zu. Weißensee ist trotzdem urban und, dank der ansässigen Kunsthochschule, beliebt bei Studierenden und Familien.

Mehr Informationen zum Bezirk Pankow

Sie haben Interesse?

Bitte beachten Sie: Der Bewerbungsprozess erfolgt in Kooperation mit unserem Partner Immomio. Über dieses Portal können Sie sich als Mietinteressent*in auf der Suche nach Wohnungen, Gewerbeobjekten oder Stellplätzen registrieren.

Jetzt bei immomio registrieren

  1. Online anmelden oder registrieren

    Klicken Sie im Wohnungsangebot auf “Jetzt bewerben” und loggen Sie sich bei unserem Partner Immomio ein. Falls Sie noch kein Konto haben, können Sie sich schnell und kostenlos registrieren.
     

  2. Einladung zur Besichtigung

    Passt Ihr Profil, laden wir Sie zu einem Besichtigungstermin ein. Bitte bringen Sie dazu einen gültigen Ausweis mit.
     

  3. Unterlagen einreichen

    Wenn Ihnen die Wohnung gefällt, laden Sie Ihre Unterlagen bequem in Ihrem Immomio-Profil hoch. 
    So können wir Ihre Bewerbung prüfen.
     
  4. Rückmeldung erhalten

    Nach der Prüfung melden wir uns mit einer Zusage oder – falls es nicht klappt – mit einer Absage.