Leichte Sprache Gebärdensprache
Wohnungssuche
Weißensee

Freie Gewerbefläche für Einzelhandel in gefragter Lage

Berliner Allee 88 / 13088 Berlin
Wir vermieten provisionesfrei

Miete inkl. NK: 2.470,00 € Fläche 91,00 m²

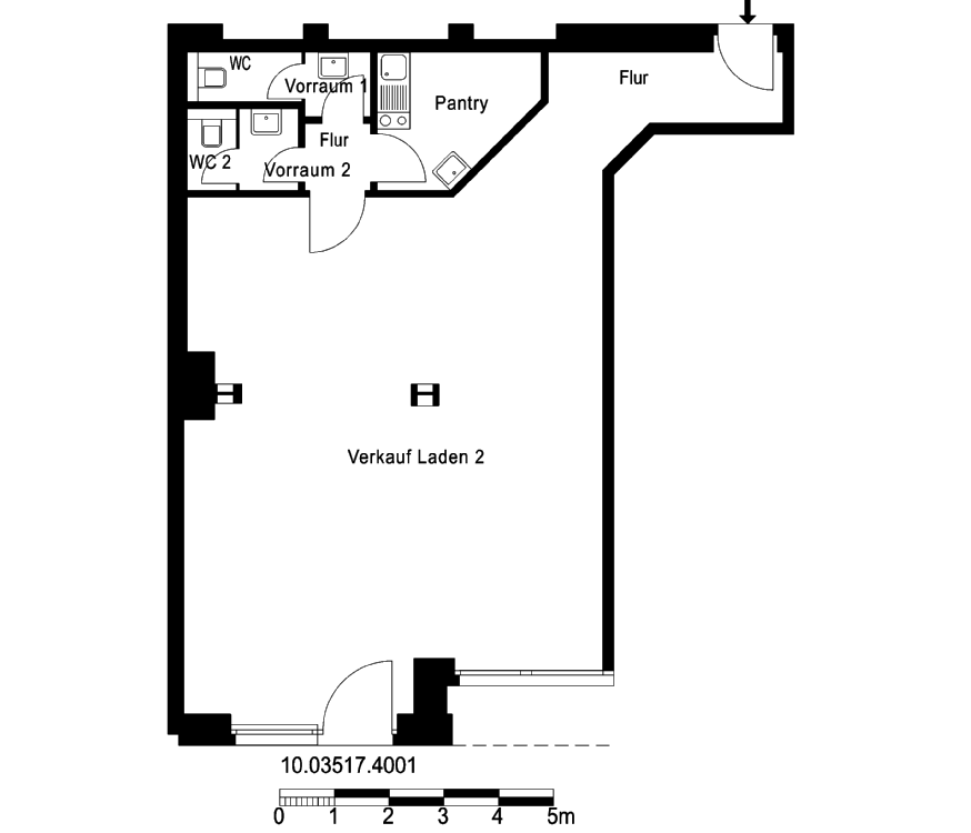
Die ca. 91 m² große Ladenfläche im Erdgeschoss überzeugt mit einer breiten, bodentiefen Schaufensterfront zur Berliner Allee. Ein offen geschnittener Verkaufsraum mit einer Deckenhöhe von rund 3,50 m bietet eine attraktive Möglichkeit für die Anbietung von Waren oder Dienstleistungen.
Zusätzlich gibt es einen kleinen Küchenabschnitt sowie zwei separate WCs. Somit kann ggf. auch ein Kunden-WC angeboten werden.
Die Fläche ist ab sofort verfügbar und wird provisionsfrei vermietet.

Lage
Die Berliner Allee ist eine Hauptverkehrsachse des Ortsteils Weißensee und wird von den Straßenbahnlinien M4, M13, 12 und 27 sowie mehreren Buslinien befahren. Somit ist die Fußgänger und Kunden-Frequenz unmittelbar sehr hoch.
Die Fahrzeit bis zum Alexanderplatz beträgt ca. 15 Minuten. In der Nähe befindet sich der Antonplatz, welcher als lokales Zentrum fungiert. Dort findet man ein Kino, zahlreiche Einkaufsmöglichkeiten sowie einen Wochenmarkt. Der Weiße See ist nur wenige Meter entfernt und lädt zum Spazieren und zum Entspannen in der Mittagspause ein.

Kosten

Kaltmiete 2.275,00 €
Betriebskosten 170,00 €

Heizkosten

25,00 €

Miete inkl. NK

2.470,00 €

Kaution

6.825,00 €

Ausstattung

Objektstandort

Grundriss

Kennzahlen

Fläche 91,00 m²

Etage

0

Baujahr

1878

Objektnummer

10-03517-00001-4001

Frei ab

sofort

Bedarfsausweis

Baujahr

1878

Erstellungsdatum

2014

Energieeffizienzklasse

E

Endenergiebedarf (in kWh/m²a)

156.4

Wesentlicher Energieträger

Gas
Jetzt bewerben

Bitte beachten Sie: Der Bewerbungsprozess erfolgt in Kooperation mit unserem Partner Immomio.