Leichte Sprache Gebärdensprache
Wohnungssuche
Niederschönhausen

Platz für dich & dein Leben – Willkommen im neuen Zuhause

Rolandstraße 70 / 13156 Berlin
Wir vermieten provisionesfrei

Miete inkl. NK: 1.426,14 € Wohnfläche 60,47 m² Anzahl Zimmer 2,00

Objektreferenz: 10-03020-00008-1035

In den Straßenhäusern befinden sich in der obersten Etage zwei Wohnungen, in den Gartenhäusern jeweils eine Maisonettewohnung. Die viergeschossigen Häuser sind im Außenbereich barrierefrei zu erreichen. Ebenso sind die Zugänge zu allen Erdgeschosswohnungen sowie die Wohnungen der Straßenhäuser barrierearm. Fußbodenheizung, modern geflieste Bäder und Balkone oder Terrassen an allen Wohnungen, lassen keine Neubauwünsche offen.
Die Straßenhäuser Nr. 70 und 72 sind mit Aufzügen ausgestattet. Die nach hinten versetzten Häuser Nr. 69, 71 und 73 haben keine Aufzüge.

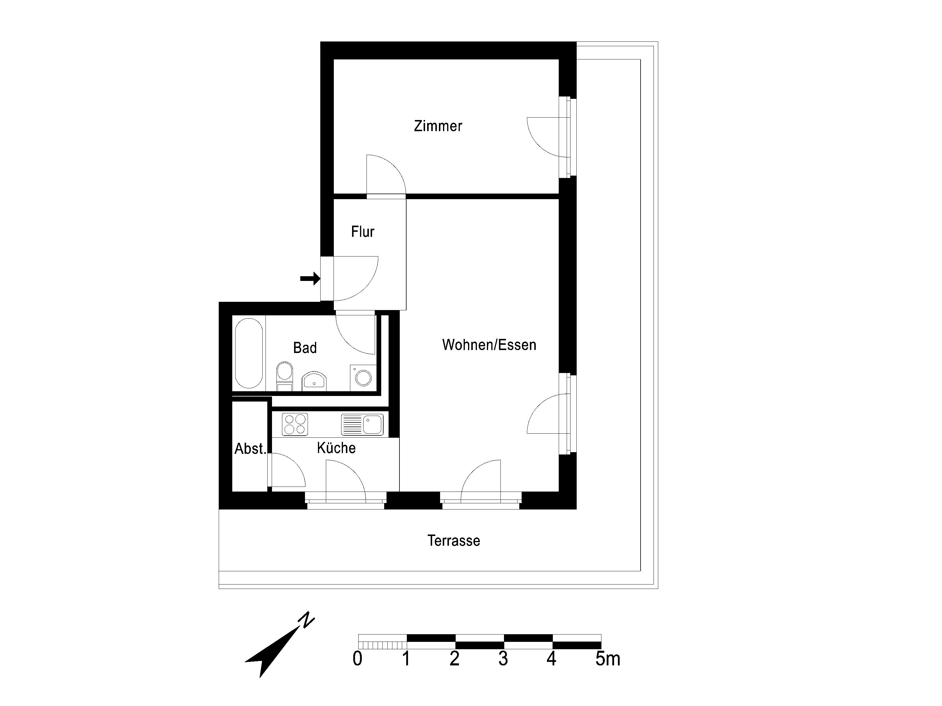
Diese wundervolle Dachgeschosswohnung lässt keine Wünsche offen. Von Eingang gelangen Sie direkt in den geräumigen Wohnbereich und zur Terrasse, die viel Platz bietet. Von der Küche geht eine Abstellkammer ab, die vor allem als Vorratsraum nutzbar ist. Außerdem bietet Ihnen die Wohnung ein großzügiges Schlafzimmer und ein innenliegendes Wannenbad. Anschauen lohnt sich!

Lage
Diese Wohnung befindet sich im grünen Niederschönhausen, im beliebten Familienbezirk Pankow. Der Bezirk zeichnet sich durch seine zahlreichen Parks aus, insbesondere der nahegelegene Schlosspark bietet ausreichend Erholungsmöglichkeiten. Mit der Tram sind Sie innerhalb kürzester Zeit im Stadtzentrum und auch am S U -Bahnhof Pankow oder S-Bahnhof Pankow-Heinersdorf.

Kosten

Kaltmiete 1.196,70 €
Betriebskosten 145,13 €

Heizkosten

84,31 €

Miete inkl. NK

1.426,14 €

Kaution

3.590,10 €

Ausstattung

Aufzug

Ja

TV / Sat / Kabel

Ja

Keller

Ja

Badewanne

Ja

Terrasse

Ja

Objektstandort

Grundriss

Kennzahlen

Anzahl Zimmer 2,00
Wohnfläche 60,47 m²
WBS Nein

Etage

4

Baujahr

2017

Objektnummer

10-03020-00008-1035-672b6219-6734-41be-bced-c3403fba5ca8

Frei ab

sofort

Bedarfsausweis

Baujahr

2017

Erstellungsdatum

2014

Energieeffizienzklasse

B

Endenergiebedarf (in kWh/m²a)

69.7

Wesentlicher Energieträger

Fernwärme
Jetzt bewerben

Bitte beachten Sie: Der Bewerbungsprozess erfolgt in Kooperation mit unserem Partner Immomio.